Вентилятор пылевой ВР 140-40 №5 исп. 5 радиальный, среднего давления, одностороннего всасывания, используется в системах удаления пыли от металло- и деревообрабатывающих станков, в составе установок пневматической транспортировки, а также в системах кондиционирования и вентиляции воздуха. Рабочая среда: запылённый воздух и невзрывоопасные пылегазовоздушные смеси с температурой не выше 80° С, с плотностью загрязнений не более 1 кг/м3.
ВР 140-40 №5 исп. 5 общего назначения, из углеродистой стали, изготовлен по 1-му конструктивному исполнению (с рабочим колесом на валу двигателя). Диаметр рабочего колеса составляет 2,5 дм (250 мм). Согласно ГОСТ 15150-69, предназначен для эксплуатации в условиях У2, У3 и Т2, Т3. При условии обеспечения защиты электродвигателя от атмосферных осадков и прямых солнечных лучей возможна эксплуатация по 1 категории размещения. Пылевой вентилятор ВР 140-40 №5 исп. 5 может эксплуатироваться в зонах с повышенной сейсмической опасностью.
Вентилятор пылевой ВР 140-40 №5 исп. 5 радиальный, среднего давления, одностороннего всасывания, используется в системах удаления пыли от металло- и деревообрабатывающих станков, в составе установок пневматической транспортировки, а также в системах кондиционирования и вентиляции воздуха. Рабочая среда: запылённый воздух и невзрывоопасные пылегазовоздушные смеси с температурой не выше 80° С, с плотностью загрязнений не более 1 кг/м3.
|
Масса не более, кг
|
280, 351, 360, 362, 366, 368, 387, 389, 393, 395, 398, 411, 422, 430, 432, 434, 438, 476 |
|
Объем вентилятора, м³
|
3,8 |
| Электродвигатель | |
|
Типоразмер
|
АИР112М4, АИР132S4, АИР132М4, АИР160S4 |
|
Мощность, кВт
|
5,5, 7,5, 11, 15 |
|
Частота вращения, мин-1
|
1620, 1810, 2030, 1631, 1813, 2285, 1637, 1819, 2037, 2575, 1611, 2256 |
| Параметры в рабочей зоне | |
|
Производ. 10³ х м³/час
|
2,4-5,5, 2,7-6,2, 3,0-5,2, 3,0-7,3, 3,4-5,8, 3,7-7,2, 3,4-8,0, 3,7-9,0 |
|
Полное давление, Па
|
1280-970, 1600-1220, 2000-1840, 2000-1600, 2550-2350, 3250-2700, 2550-2000, 3250-2450 |
| Виброизоляторы | |
|
Тип
|
ДО42 |
|
Кол-во
|
6 |

Положение корпуса вентиляторов ВР 140-40 исп-5.
| Размеры, мм | ||||||||
|---|---|---|---|---|---|---|---|---|
| Пр 135˚, Л135˚ | Пр 270˚, Л270˚ | Пр 315˚, Л315˚ | ||||||
| B | b | H | B | b | H | B | b | H |
| 1168 | 350 | 386 | 1148 | 333 | 330 | 1362 | 546 | 310 |
| Пр 0˚, 0˚ | Пр 45˚, Л45˚ | Пр 90˚, Л90˚ | ||||||
| 1255 | 440 | 333 | 1200 | 386 | 546 | 1182 | 367 | 440 |

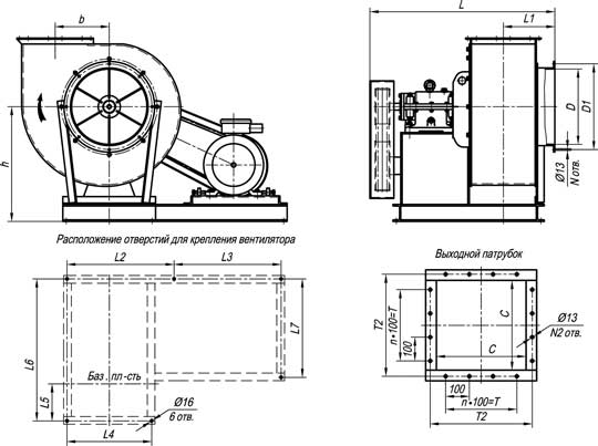
| № вент. | Размеры, мм | |||||||||
|---|---|---|---|---|---|---|---|---|---|---|
| D | D1 | C | d | b | h | L | L1 | L2 | L3 | |
| вар-1 | 350 | 390 | 300 | 12 | 250 | 550 | 902 | 250 | 980/2 | 980/2 |
| вар-2 | 847 | |||||||||
| L4 | L5 | L6 | L7 | T | T2 | N1 | N2 | N3 | n | |
| вар-1 | 410 | 170 | 726 | 526 | 200 | 336 | 8 | 12 | 5 | 2 |
| вар-2 | 671 | |||||||||

| n, мин-1 | Значение Lpi, дБ в октановых полосах f, Гц | LpA, дБА | ||||||
|---|---|---|---|---|---|---|---|---|
| 1810 | 90 | 92 | 96 | 95 | 92 | 91 | 85 | 76 |
| 2030 | 95 | 97 | 101 | 100 | 97 | 96 | 90 | 81 |
| 2285 | 97 | 99 | 103 | 102 | 99 | 98 | 92 | 83 |
| 2575 | 102 | 104 | 108 | 107 | 104 | 103 | 97 | 88 |
Акустические характеристики измерены со стороны нагнетания при номинальном режиме работы вентилятора. На стороне всасывания уровни звуковой мощности на 3 дБ ниже уровней, приведенных в таблице.
На границах рабочего участка аэродинамические уровни звуковой мощности на 3дБ выше уровня звуковой мощности, соответствующего номинальному режиму работы вентилятора.