Дымосос ДН-19 представляет собой тягодутьевую машину одностороннего всасывания, применяется для удаления продуктов горения из топочных камер котлов и печей, а также для подачи чистого воздуха в котельных установках. Диаметр рабочего колеса — 630 мм. Может быть укомплектован электродвигателем с мощностью 4 кВт или 5,5 кВт и имеет производительность, соответственно, 3400 или 5100 м3/час.
Дымосос ДН-19 одна из самых популярных и широко распространённых моделей тягодутьевых машин. Наиболее востребованы модели, изготовленные по первой конструктивной схеме, с рабочим колесом, расположенным на валу электродвигателя. Возможны также конструктивные исполнения 3 и 5 (с подшипниковой муфтой или ременной передачей). ДН-19 — самая компактная модель, которая может быть выполнена в исп. 3 и исп. 5.
В стандартном исполнении дымосос ДН-19 изготавливается без элементов взрывозащиты, с корпусом и рабочим колесом из углеродистой стали для транспортировки неагрессивной дымовой среды с температурой не выше +200° С.
Дымосос ДН-19 представляет собой тягодутьевую машину одностороннего всасывания, применяется для удаления продуктов горения из топочных камер котлов и печей, а также для подачи чистого воздуха в котельных установках. Диаметр рабочего колеса — 630 мм. Может быть укомплектован электродвигателем с мощностью 4 кВт или 5,5 кВт и имеет производительность, соответственно, 3400 или 5100 м3/час.
| 
											Мощность, кВт
																					 | 132, 110, 250, 200 | 
| 
											Электродвигатель
																					 | АИР355М10, АИР355S8, АИР355МА6, АОД4-355Х-6, АИР355МВ6, ДАЗО4-400ХК-6 | 
| 
											Частота вращения, мин^-1
																					 | 750, 1000, 600 | 
| Параметры в рабочей зоне | |
| 
											Производ. 10³ х м³/час
																					 | 78000, 105000, 62000 | 
| 
											Полное давление, Па
																					 | 1700, 2700, 4620 | 
| Масса, кг | Исполнение | |
| 
											3
																					 | 3150 | 

Схема разворотов корпусов тягодутьевых машин типа ВДН и ДН (ПР).

Схема разворотов корпусов тягодутьевых машин типа ВДН и ДН (ЛЕВ).
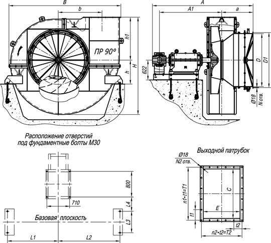
Габаритные и присоединительные размеры тягодутьевых машин типа ВДН и ДН №19-22 исп-3

| № машины | A | A1 | a | B | b | D | D1 | H | h | h1 | C | E | 
|---|---|---|---|---|---|---|---|---|---|---|---|---|
| 19 | 2974 | 1870 | 924 | 3209 | 1235 | 1245 | 1325 | 2810 | 750 | 1230 | 950 | 707 | 
| 21 | 3143 | 1943 | 980 | 3703 | 1365 | 1650 | 1720 | 3041 | 750 | 1340 | 1050 | 780 | 
| 22 | 3180 | 1960 | 1000 | 4476 | 1650 | 1650 | 1720 | 3578 | 850 | 1464 | 1540 | 818 | 
| № машины | L1 | L2 | L3 | L4 | t1 | t2 | T1 | T2 | N | N2 | n1 | n2 | 
|---|---|---|---|---|---|---|---|---|---|---|---|---|
| 19 | 1437 | 1740 | 600 | 450 | 267,5 | 205 | 1070 | 820 | 16 | 16 | 4 | 4 | 
| 21 | 1585 | 1926 | 670 | 448 | 225 | 172 | 1125 | 860 | 12 | 20 | 5 | 5 | 
| 22 | 1850 | 2444 | 600 | 500 | 330 | 232,5 | 1650 | 930 | 12 | 18 | 5 | 4 | 

| Типо-размер машины | n, мин-1; | Зона измерений | Значение Lpi, дБ в октавных полосах f, Гц | LpA, дБА | ||||||
|---|---|---|---|---|---|---|---|---|---|---|
| 125 | 250 | 500 | 1000 | 2000 | 4000 | 8000 | ||||
| Уровни звуковой мощности, дБ | ||||||||||
| ДН-19 | 600 | Нагнетание | 102 | 104 | 102 | 100 | 97 | 94 | 90 | 105 | 
| Всасывание | 98 | 100 | 98 | 96 | 93 | 90 | 86 | 101 | ||
| Вокруг корпуса | 93 | 95 | 92 | 90 | 86 | 82 | 78 | 95 | ||
| 750 | Нагнетание | 107 | 112 | 111 | 108 | 106 | 102 | 96 | 113 | |
| Всасывание | 103 | 108 | 107 | 104 | 102 | 98 | 92 | 109 | ||
| Вокруг корпуса | 98 | 102 | 101 | 98 | 96 | 90 | 83 | 102 | ||
| 1000 | Нагнетание | 114 | 119 | 118 | 115 | 113 | 109 | 103 | 120 | |
| Всасывание | 110 | 115 | 114 | 111 | 109 | 105 | 99 | 116 | ||
| Вокруг корпуса | 105 | 110 | 108 | 105 | 103 | 97 | 90 | 109 | ||
