Дымосос Д-18 исп 3 представляет собой тягодутьевую машину среднего и высокого давления, одностороннего всасывания. Котельный дымосос используется для удаления продуктов горения из топочных камер котлов, а также для нагнетания чистого воздуха в топливные системы котельных установок.
Дымосос Д-18 исп 3 имеет рабочее колесо диаметром ХХ дециметров, с 32 лопатками. Спиральный поворотный корпус изготавливается с углом разворота выхлопа 0° … 270°, что обеспечивает удобный монтаж к вентканалу.
Д-18 исп 3 предназначен для эксплуатации в условиях умеренного климата (температура окружающего воздуха -30 … +40° С), категории размещения У2 и У3. При обеспечении защиты электрической части от прямых солнечных лучей и атмосферных воздействий, дымосос Д-18 исп 3 допускается эксплуатировать по категории размещения У1.
Дымосос Д-18 исп 3 представляет собой тягодутьевую машину среднего и высокого давления, одностороннего всасывания. Котельный дымосос используется для удаления продуктов горения из топочных камер котлов, а также для нагнетания чистого воздуха в топливные системы котельных установок.
|
Мощность, кВт
|
132, 160 |
|
Масса не более, кг
|
3810 |
|
Электродвигатель
|
АИР355S8, АИР355М8 |
|
Частота вращения, мин^-1
|
750 |
| Параметры в рабочей зоне | |
|
Производ. 10³ х м³/час
|
103000 |
|
Полное давление, Па
|
3100 |

Схема разворотов корпусов тягодутьевых машин типа ВД и Д (ПР).

Схема разворотов корпусов тягодутьевых машин типа ВД и Д (ЛЕВ).
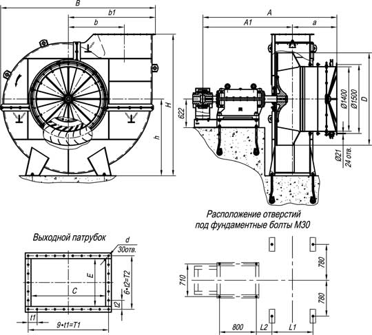
Габаритные и присоединительные размеры машин ВД и Д №18 и №20 (Пр 90°)

| Типоразмер машины | A | А1 | a | B | b | b1 | D | d | H |
|---|---|---|---|---|---|---|---|---|---|
| 18 | 3109 | 1909 | 980 | 3100 | 1093,5 | 1768 | 1800 | 18,5 | 2780 |
| 20 | 3128 | 1944 | 964 | 3418 | 1215 | 1948 | 2000 | 21,5 | 3080 |
| Типоразмер машины | h | E | C | L1 | L2 | t1 | t2 | T1 | T2 |
|---|---|---|---|---|---|---|---|---|---|
| 18 | 1510 | 675 | 1053 | 817 | 340 | 130 | 130 | 780 | 1170 |
| 20 | 1670 | 750 | 1170 | 892 | 338 | 140 | 140 | 840 | 1260 |

