Дымосос Д-15,5 исп 3 представляет собой тягодутьевую машину среднего и высокого давления, одностороннего всасывания. Котельный дымосос используется для удаления продуктов горения из топочных камер котлов, а также для нагнетания чистого воздуха в топливные системы котельных установок.
Дымосос Д-15,5 исп 3 имеет рабочее колесо диаметром ХХ дециметров, с 32 лопатками. Спиральный поворотный корпус изготавливается с углом разворота выхлопа 0° … 270°, что обеспечивает удобный монтаж к вентканалу.
Д-15,5 исп 3 предназначен для эксплуатации в условиях умеренного климата (температура окружающего воздуха -30 … +40° С), категории размещения У2 и У3. При обеспечении защиты электрической части от прямых солнечных лучей и атмосферных воздействий, дымосос Д-15,5 исп 3 допускается эксплуатировать по категории размещения У1.
Дымосос Д-15,5 исп 3 представляет собой тягодутьевую машину среднего и высокого давления, одностороннего всасывания. Котельный дымосос используется для удаления продуктов горения из топочных камер котлов, а также для нагнетания чистого воздуха в топливные системы котельных установок.
|
Мощность, кВт
|
75, 132, 315 |
|
Масса не более, кг
|
2280* |
|
Электродвигатель
|
АИР355S8, АДН-315-6, 5АМ315М10 |
|
Частота вращения, мин^-1
|
750, 1000, 600 |
| Параметры в рабочей зоне | |
|
Производ. 10³ х м³/час
|
50000, 63000, 80000 |
|
Полное давление, Па
|
5000, 1800, 2850 |

Схема разворотов корпусов тягодутьевых машин типа ВД и Д (ПР).

Схема разворотов корпусов тягодутьевых машин типа ВД и Д (ЛЕВ).
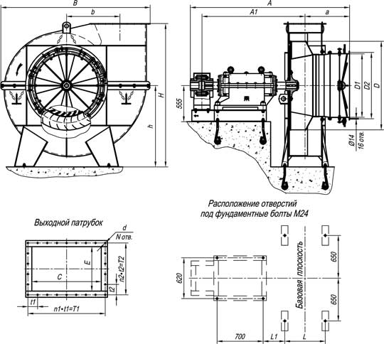
Габаритные и присоединительные размеры тягодутьевых машин ВД и Д №13,5 и №15,5 (Пр 90°)

Габаритные и присоединительные размеры машин ВД и Д №13,5 и №15,5 (Пр 90°)
| Типоразмер машины | A | A1 | a | B | b | D | D1 | D2 | d | C | E |
|---|---|---|---|---|---|---|---|---|---|---|---|
| 13,5 | 2435 | 1581 | 674 | 2244 | 820 | 1350 | 975 | 1020 | 14 | 790 | 506 |
| 15,5 | 2428 | 1538 | 710 | 2559 | 941,5 | 1550 | 1100 | 1175 | 18 | 907 | 578 |
| Типоразмер машины | H | h | L | L1 | t1 | t2 | T1 | T2 | N | n1 | n2 |
|---|---|---|---|---|---|---|---|---|---|---|---|
| 13,5 | 2203 | 1250 | 620 | 332 | 110 | 118 | 880 | 590 | 26 | 8 | 5 |
| 15,5 | 2597 | 1500 | 692 | 253 | 162 | 162 | 972 | 648 | 20 | 6 | 4 |
| Типо-размер машины | n, мин-1 | Зона измерений | Значение Lpi, дБ в октавных полосах f, Гц | LpA, дБА | ||||||
|---|---|---|---|---|---|---|---|---|---|---|
| 125 | 250 | 500 | 1000 | 2000 | 4000 | 8000 | ||||
| Уровни звуковой мощности | ||||||||||
| Д-15,5 | 1000 | Нагнетание | 119 | 123 | 124 | 122 | 120 | 117 | 113 | 127 |
| Всасывание | 114 | 118 | 119 | 117 | 115 | 112 | 108 | 122 | ||
| Вокруг корпуса | 104 | 107 | 108 | 108 | 107 | 104 | 102 | 113 | ||
| 750 | Нагнетание | 112 | 116 | 117 | 115 | 113 | 110 | 106 | 120 | |
| Всасывание | 107 | 111 | 112 | 110 | 108 | 105 | 101 | 115 | ||
| Вокруг корпуса | 97 | 100 | 101 | 101 | 100 | 97 | 95 | 106 | ||
| 600 | Нагнетание | 110 | 111 | 109 | 107 | 104 | 100 | 96 | 112 | |
| Всасывание | 106 | 107 | 105 | 103 | 100 | 96 | 92 | 108 | ||
| Вокруг корпуса | 101 | 102 | 99 | 97 | 93 | 88 | 84 | 102 | ||