Устройство и принцип работы
Конструкция УВНЭ — моноблочный агрегат, смонтированный на общей раме. Основными частями установки являются электрокалорифер ВНЭ и вентилятор ВЦ-14-46. Они соединены между собой конфузором, который выполняет функцию переходника между прямоугольным сечением калорифера и круглым сечением вентилятора, и гибкой вставкой, защищающей воздухонрагреватель от вибраций вентилятора.
Воздух из окружающей среды, вследствие разряжения, создаваемого вентилятором, подаётся на трубчатые электронагреватели калорифера (ТЭНы), нагревается, и через вентилятор подаётся в обогреваемое помещение. Для увеличения теплоотдачи трубки ТЭНов имеют алюминиевые рёбра. ТЭНы соединены между собой в «звезду», благодаря чему нагреватель можно использовать как на 100% номинальной мощности, так и на определённый процент от неё.
Для защиты от перегрева УВНЭ снабжена двумя биметаллическими термовыключателями. Первый настроен на повышение температуры более +70°С, и предназначен для предотвращения перегрева потока воздуха; температура срабатывания второго — +100°С, он предназначен для защиты корпуса от чрезмерного нагрева.
Воздухонагревательные электроустановки УВНЭ выпускаются в восьми типоразмерах, отличия между которым заключаются в мощности калориферов и вентиляторов.
Эксплуатация
Воздухонагревательные электроустановки предназначены для работы в температурном диапазоне -10°С … +40°С (вид климатического исполнения УХЛ4 по ГОСТ 15150-69). Максимально допустимая запылённость воздуха — 0,5 мг/м3. Перемещаемый через установку воздух не должен содержать взрывоопасных веществ и токопроводящей пыли, а также липких и волокнистых материалов и веществ. Установки УВНЭ могут эксплуатироваться как самостоятельно, так и для в составе технологического оборудования.
Комплектация установок вентиляторами
| Наименование продукции | Марка вентилятора | Мощность вентилятора | Частота вращения, об/мин |
|---|---|---|---|
| УВНЭ-15-02 УХЛ4 | ВЦ 14-46 №3,15 | 1,1 | 1500 |
| УВНЭ-30-01 УХЛ4 | 1,1 | ||
| УВНЭ-30-02 УХЛ4 | 1,1 | ||
| УВНЭ-45-01 УХЛ4 | 2,2 | ||
| УВНЭ-45-02 УХЛ4 | 2,2 | ||
| УВНЭ-65-01 УХЛ4 | ВЦ 14-46 №4 | 4 | |
| УВНЭ-65-02 УХЛ4 | 4 | ||
| УВНЭ-90-01 УХЛ4 | 7,5 |
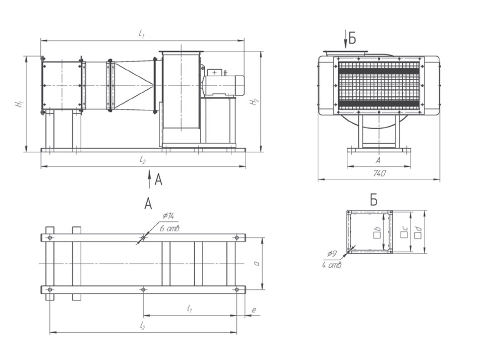
Габаритные и присоединительные размеры электроустановок воздухонагревательных УВНЭ
| Наименование изделия | Размеры, мм | |||||||||||
|---|---|---|---|---|---|---|---|---|---|---|---|---|
| A | H1 | H2 | L1 | L2 | a | b | c | d | e | l1 | l2 | |
|
УВНЭ-15-02
|
390
|
560
|
660
|
1335
|
1340
|
340
|
221
|
241
|
261
|
65
|
600
|
1200
|
|
УВНЭ-30-01
|
||||||||||||
|
УВНЭ-30-02
|
625
|
|||||||||||
|
УВНЭ-45-01
|
1350
|
|||||||||||
|
УВНЭ-45-02
|
695
|
|||||||||||
|
УВНЭ-65-01
|
322
|
845
|
852
|
1405
|
1380
|
290
|
280
|
300
|
320
|
40
|
650
|
1300
|
|
УВНЭ-65-02
|
910
|
|||||||||||
|
УВНЭ-90-01
|
352
|
1455
|
1420
|
320
|
160
|
|||||||
