Скачать опросный лист
Агрегат воздушно-отопительный АО 2-20 одноструйный используется для нагрева воздуха (рециркуляционного/внешнего/смешанного), и применяется в системах воздушного отопления и вентиляционно-отопительных системах помещений промышленного и сельскохозяйственного назначения, зданий. Агрегат воздушно-отопительный АО 2-20 предназначен для эксплуатации в условиях умеренного климата (У), 3-я категория размещения по ГОСТ 15150-69.
Скачать опросный лист
Агрегат воздушно-отопительный АО 2-20 предназначен для обогрева воздуха в зданиях и помещениях. Нагрев воздуха осуществляется за счёт температуры теплоносителя. Теплоносителем служит горячая (перегретая) вода. В тёплое время года Агрегат воздушно-отопительный АО 2-20 можно использовать в качестве обычного вентилятора.
Воздух не должен содержать волокнистых материалов и липких веществ, допустимая запылённость — не более 0,5 мг/м3. Максимальное содержание химически агрессивных веществ в воздухе должно соответствовать требованиям ГОСТ 12.1.005-88.
Агрегат воздушно-отопительный АО 2-20 одноструйный используется для нагрева воздуха (рециркуляционного/внешнего/смешанного), и применяется в системах воздушного отопления и вентиляционно-отопительных системах помещений промышленного и сельскохозяйственного назначения, зданий. Агрегат воздушно-отопительный АО 2-20 предназначен для эксплуатации в условиях умеренного климата (У), 3-я категория размещения по ГОСТ 15150-69.
|
Производительность по теплу, кВт
|
220 |
|
Установочная мощность, кВт
|
2,2 |
|
Диаметр патрубка, Ду
|
50 |
|
Расход воды, м3/ч, при скорости воды в трубках w=0,7÷1,0 м/с
|
4,9÷6,9 |
|
Сечение для прохода теплоносителя, м2
|
0,00203 |
|
Сечение патрубка, м2
|
0,00221 |
|
Температура теплоносителя на входе, °С
|
150/70 |
|
Число рядов
|
3 |
|
Число ходов
|
4 |
|
Производительность по воздуху, м3/час
|
20000 |
|
Масса сухая, кг
|
255 |
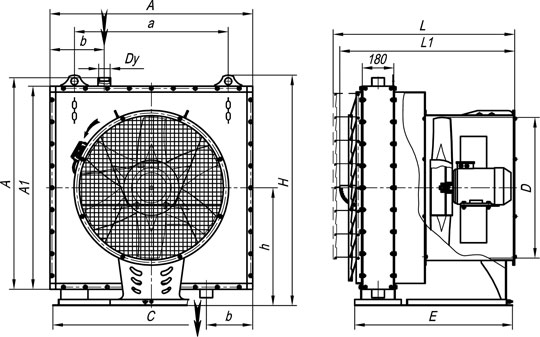
Габаритные размеры агрегатов воздушно-отопительных АO 2-20 на базе калориферов типа КСк

| № АО2 | A | A1 | a | B | b | C | D | Dy | E | H | h | L | L1 |
|---|---|---|---|---|---|---|---|---|---|---|---|---|---|
| 20 | 1201 | 1154 | 875 | 977 | 78,5 | 1120 | 800 | 50 | 915 | 1310 | 670 | 1055 | 1015 |
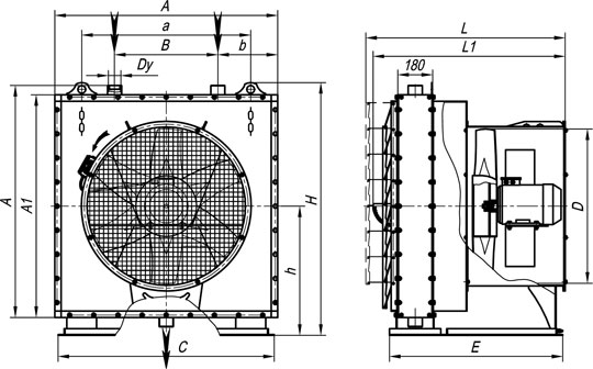
Габаритные размеры агрегатов воздушно-отопительных АO 2-20 на базе калориферов типа КП

Агрегат АО 2 №3-6,3П

Агрегат АО 2 №10-25П
| № АО2-П | A | A1 | a | B | b | C | D | Dy | E | H | h | L | L1 |
|---|---|---|---|---|---|---|---|---|---|---|---|---|---|
| 20 | 1201 | 1154 | 875 | 535 | 310 | 1120 | 800 | 65 | 915 | 1310 | 670 | 1055 | 1015 |