Котел Е-1,0-0,9ГМ
Цена по запросу
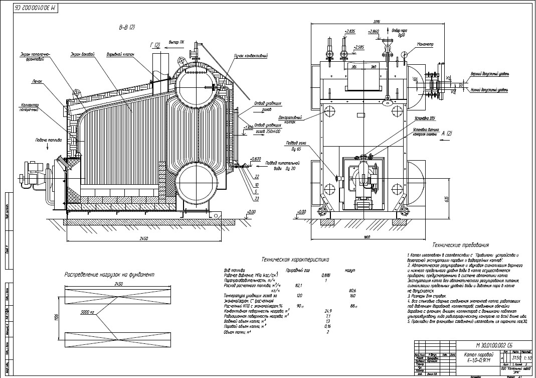
Паровой котел Е-1.0-0.9 ГМ – это вертикально-водотрубный двухбарабанный котел с естественной циркуляцией теплоносителя и рабочей температурой пара 170 °С, работающий как на газе, так и на жидком топливе. Е-1.0-0.9 ГМ применяется для получения насыщенного пара, используемого для технологических нужд предприятий различных отраслей промышленности в системах отопления, вентиляции и горячего водоснабжения.
Внимание! В связи с изменением курса валют актуальные цены уточняйте у менеджеров.
Котел Е-1,0-0,9ГМ
Цена по запросу
Схема устройства котла Е-1.0-0.9 для газа и жидкого топлива

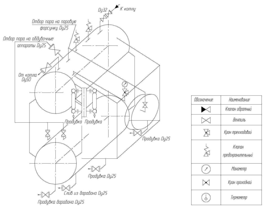
Схема расположения арматуры


Характеристики
|
Вид расчетного топлива
|
Газ, Жидкое топливо |
|
Габариты компоновки, LxBxH, мм
|
3850х1790х2700 |
|
Габариты транспортабельного блока, LxBxH, мм
|
3850х1790х2650 |
|
Масса котла без топки (в объеме заводской поставки), кг
|
3995 |
|
Масса котла без топки (транспортабельного блока котла), кг
|
3815 |
|
Паропроизводительность, т/ч
|
1 |
|
Рабочее давление теплоносителя на выходе, МПа (кгс/см2)
|
0,8 |
|
Расход расчетного топлива , кг/ч
|
80 |
|
Расчетный КПД (2), %
|
88 |
|
Расчетный КПД, %
|
90 |
|
Температура пара на выходе, °С
|
насыщ. 170 |
|
Температура питательной воды, °С
|
50 |
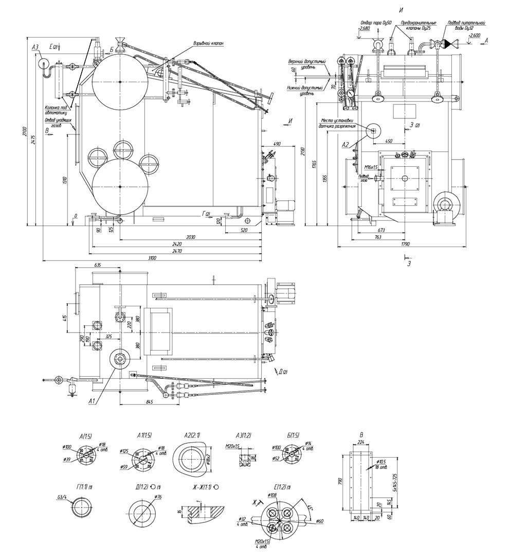
Присоединительные размеры котла Е 1.0-0.9 ГМ

