Дымосос Д-21,5х2
Цена по запросу
Внимание! В связи с изменением курса валют актуальные цены уточняйте у менеджеров.
Дымосос Д-21,5х2
Цена по запросу
Характеристики
|
Мощность, кВт
|
630, 400, 500, 800, 1000 |
|
Масса сухая, кг
|
12600 |
|
Электродвигатель
|
ДАЗО4-560ХК-10У1, ДАЗО4-560Х-10У1, ДАЗО4-560Х-8У1, ДАЗО4-560УК-8У1, ДАЗО4-560У-8У1 |
|
Частота вращения, мин^-1
|
750, 600 |
|
Исп.
|
1 |
| Параметры в рабочей зоне | |
|
Производ. 10³ х м³/час
|
245, 310 |
|
Полное давление, Па
|
3000, 4700, 4710 |
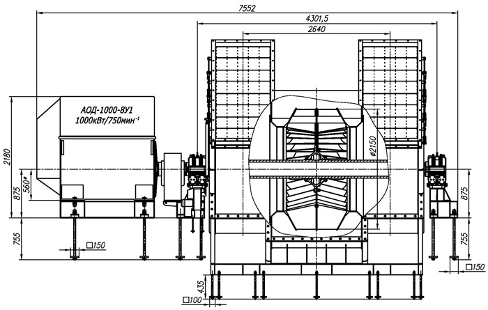
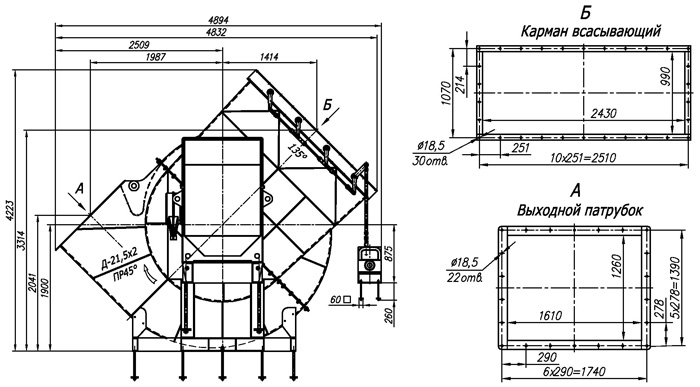
Габаритные, присоединительные и установочные размеры тягодутьевой машины типа Д-21,5х2


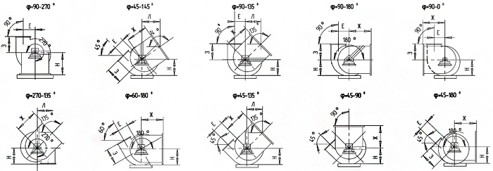
Положение корпуса тягодутьевой машины типа Дх2

| Угол поворота, град | Размеры, мм | |||||
|---|---|---|---|---|---|---|
| Н | Е | 3 | Ж | Л | ||
| Д-21,5х2 | 90-270 | 2300 | 1307,5 | 1500 | 1950 | - |
| 45-145 | 1750 | 1307,5 | 1500 | 1850 | 1515 | |
| 90-135 | 1640 | 1307,5 | 1500 | 1850 | 1310 | |
| 90-180 | 1640 | 1307,5 | 1500 | 1850 | - | |
| 270-135 | 1500 | 1307,5 | 1500 | 1850 | 1485 | |
| 60-180 | 1800 | 1307,5 | 1500 | 1850 | - | |
| 45-135 | 1750 | 1307,5 | 1500 | 1850 | 1310 | |
| 45-90 | 1750 | 1307,5 | 1500 | 1850 | - | |