Дымосос Д-18х2
Цена по запросу
Внимание! В связи с изменением курса валют актуальные цены уточняйте у менеджеров.
Дымосос Д-18х2
Цена по запросу
Характеристики
|
Мощность, кВт
|
315, 400 |
|
Масса сухая, кг
|
8400 |
|
Электродвигатель
|
ДАЗО4-450Х-8, АОД-315-8, ДАЗО4-450УК-8, АОД-400-8 |
|
Частота вращения, мин^-1
|
750 |
|
Исп.
|
1 |
| Параметры в рабочей зоне | |
|
Производ. 10³ х м³/час
|
180 |
|
Полное давление, Па
|
3300 |
Положение корпуса тягодутьевых машин типа Дх2 (ПР)

Положение корпуса тягодутьевых машин типа Дх2 (лев)

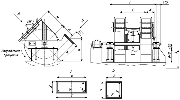
Габаритные и присоединительные размеры тягодутьевой машины типа Д-18х2

| Типоразмер машины | Угол поворота, град | Размеры, мм | ||||||||
|---|---|---|---|---|---|---|---|---|---|---|
| В | Г | Д | Е | Ж | 3 | И | К | Л | ||
| Д-18х2 | 135-45 | 1446 | 3750 | 1800 | 2188 | 605 | 1460 | 1232 | 1050 | 1095 |
| 45-145 | 1446 | 3750 | 1800 | 2188 | 1460 | 1232 | 1050 | 1095 | ||
| 90-135 | 1446 | 3750 | 1800 | 2188 | 1360 | 1232 | 1050 | 1095 | ||
| 90-180 | 1414 | 3750 | 1800 | 2188 | 1360 | 1232 | 1050 | 1095 | ||
| 90-270 | 1414 | 3750 | 1800 | 2188 | 1650 | 1228 | 1050 | 1095 | ||
| 270-135 | 1414 | 3750 | 1800 | 2188 | 1260 | - | 1050 | 1095 | ||
| 45-180 | 1446 | 3750 | 1800 | 2188 | 1600 | - | 1050 |
1095 |
||
| Типоразмер машины | Угол поворота, град | Размеры, мм | ||||||
|---|---|---|---|---|---|---|---|---|
| М | Н | Е | У | Ф | X | Ц | ||
| Д-18х2 | 135-45 | 1550 | 1260 | 2188 | 2040 | 2130 | 908 | 830 |
| 45-145 | 1550 | 1260 | 2188 | 2040 | 2130 | 908 | 830 | |
| 90-135 | 1550 | 1260 | 2188 | 2040 | 2130 | 908 | 830 | |
| 90-180 | 1550 | 1260 | 2188 | 2040 | 2130 | 908 | 830 | |
| 90-270 | 1650 | 1260 | 2188 | 2040 | 2130 | 908 | 830 | |
| 270-135 | 1750 | 1260 | 2188 | 2040 | 2130 | 908 | 830 | |
| 45-180 | 1550 | 1260 | 2188 | 2040 | 2120 | 910 | 830 |
|
Положение корпуса тягодутьевой машины типа Дх2

| Угол поворота, град | Размеры, мм | |||||
|---|---|---|---|---|---|---|
| Н | Е | 3 | Ж | Л | ||
| Д-18х2 | 45-135 | 1460 | 1095 | 1260 | 1550 | 1096 |
| 45-145 | 1460 | 1095 | 1260 | 1550 | 1270 | |
| 90-135 | 1360 | 1095 | 1260 | 1550 | 1096 | |
| 90-180 | 1360 | 1095 | 1260 | 1550 | - | |
| 90-270 | 1650 | 1095 | 1260 | - | - | |
| 270-135 | 1260 | 1095 | - | 1750 | 1235 | |
| 45-180 | 1600 | 1095 | 1260 | 1550 | - | |
